Residência PPB
Residencial
214,34m²
2022; em construção.
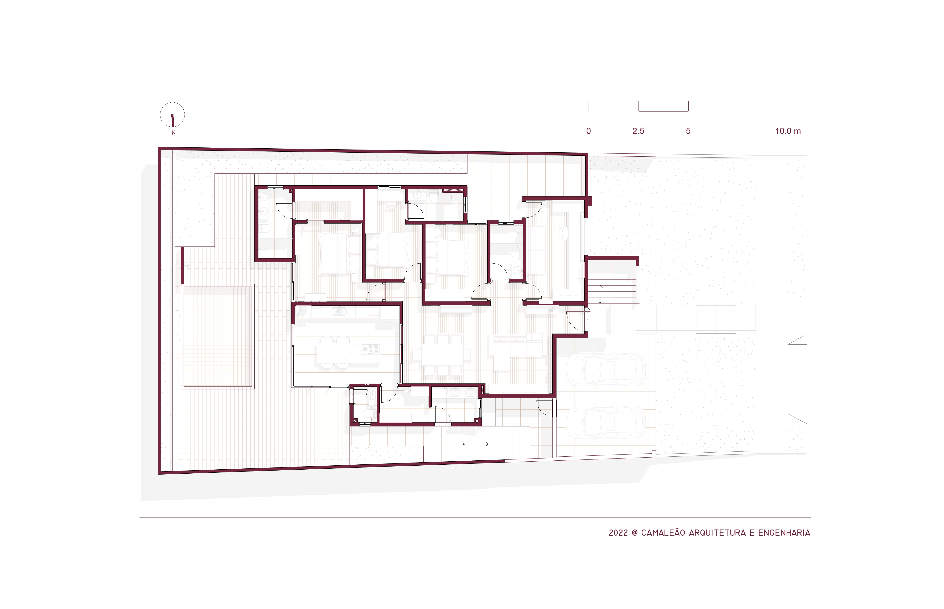
O ponto de partida desse projeto é a irregularidade do terreno, onde incorporamos harmoniosamente a escada como elemento de transição, conectando com fluidez a garagem à residência principal. O design cuidadosamente elaborado da escada não apenas oferece funcionalidade, mas também realça a beleza e a personalidade desse projeto residencial como um todo. A integração entre os espaços interno e externo é de extrema importância, especialmente na cozinha projetada como área gourmet. A cozinha na cor preta, pedido especial do cliente, contrasta com toques sutis de madeira. A escolha de portas grandes em lados opostos da cozinha tem um propósito duplo: permitir a existência de uma ilha central com cooktop, dispensando a necessidade de uma coifa e evitando obstruções visuais. Além disso, a disposição estratégica das portas promove uma excelente ventilação natural para toda a casa.

contato@camaleaoarquitetura.com
(69) 98127-4367 / (69) 98118-9306
Av. 7 de Setembro, n° 1160 - SALA 14 - Centro
76801-097 Porto Velho / RO / BRA